- Home
- Rometta
- Vendita
- Terreni
- Edificabili
- Annuncio 519945
Ricerca immobile
Annuncio
Dati immobile
Descrizione immobile
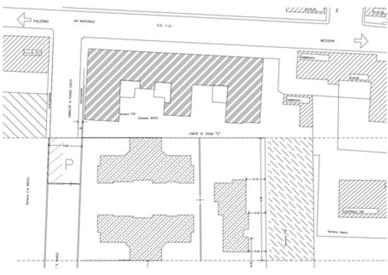
Rometta Marea: In zona centrale, esattamente sulla nazionale, a due passi dal centro cittadino, dalla posta del paese, e 5 minuti al mare a piedi, proponiamo lotto di terreno di circa 1900mq ricadente in zona B1.
Il terreno si presta a molte opere di costruzione, sia residenziale, sia commerciale.
Ottima soluzione.
Ideale per grandi imprese di costruzione.
Per maggiori info
3392735256.
TRATTATIVE RISERVATE
Mappa
Contattaci

Invio messaggio in corso...
Inviaci una email

Invio messaggio in corso...